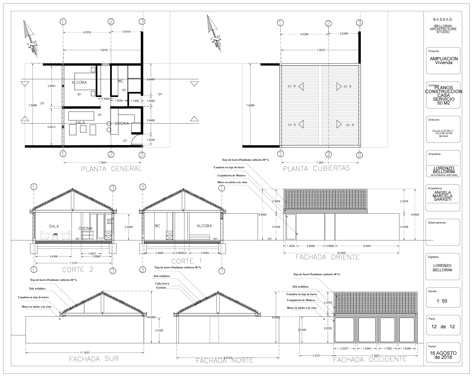
Casa 3V

Date
About This Project

AÑO:
2019

 

ÁREA:
220 M2

 

LUGAR:
VILLA DE LEYVA, BOYACÁ , COLOMBIA

 

DISEÑO:
BELLORINI
ARCHITECTURE STUDIO

 

CONSTRUCCIÓN:
BELLORINI
ARCHITECTURE STUDIO