Café El Industrial

Date
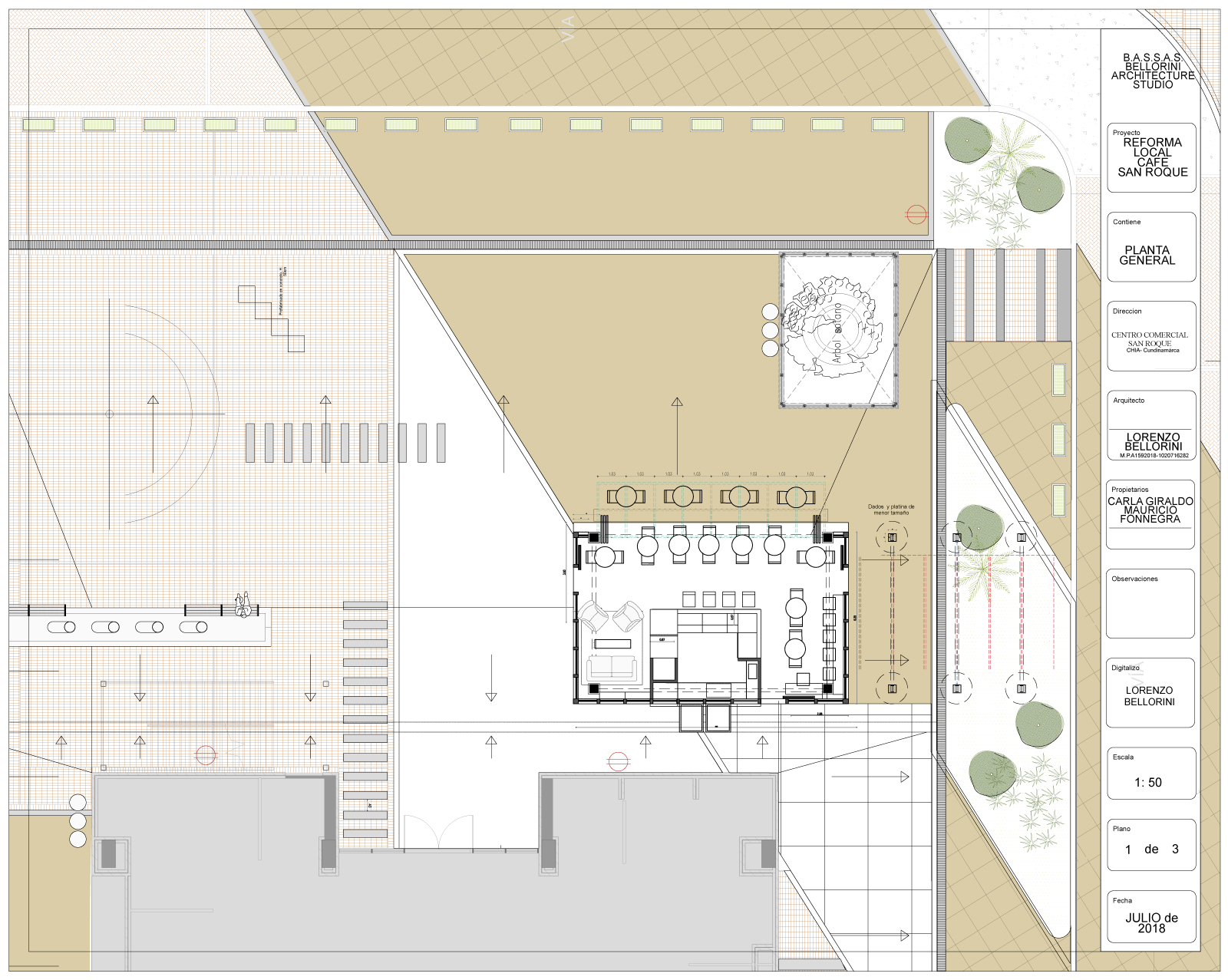
About This Project

AÑO:
2018

 

ÁREA:
70 M2

 

LUGAR:
CHÍA, COLOMBIA

 

DISEÑO:
BELLORINI
ARCHITECTURE STUDIO

 

CONSTRUCCIÓN:
BELLORINI
ARCHITECTURE STUDIO

STATUS:
ENTREGADO OCTUBRE 2018

 

 

ESTE PROYECTO SE CREÓ A PARTIR DE LA IDEA DE UN NUEVO CONCEPTO DE CAFÉ-BAR PARA UNA PLAZA COMERCIAL PRIVADA EN UN SECTOR MUY PRIVILEGIADO ENTRE CHIA Y CAJICA, CUNDINAMARCA. LA IDEA ERA HACER EL PROYECTO EN UN LOCAL EN ISLA EN LA MITAD DE UNA PLAZA COMERCIAL, EN DONDE EL CAFÉ, SE CONVERTIRÍA EN EL LOCAL ANCLA PARA LA PLAZA Y DEBÍA ENCAJAR CON EL DISEÑO Y EL ESTILO ARQUITECTÓNICO DEL LUGAR. POR ESO PROPUSE QUE EL DISEÑO DEL CAFÉ DEBÍA MIMETIZARSE CON EL LUGAR DE MANERA QUE SU PIEL SE VOLVIERA INVISIBLE O MÁS BIEN QUE SE FUERA ADAPTANDO A LA ESTRUCTURA DEL LUGAR POCO A POCO. POR ESO LAS CUATRO CARAS DE LA ISLA SE CONVIRTIERON EN UNA PIEL TRANSPARENTE CREADA CON UNA MALLA METALICA EXPANDIDA PINTADA DE NEGRO COMO TODA LA ESTRUCTURA DEL LUGAR EN LA PLAZA.