Bar Sauna

Date
About This Project

AÑO:
2017

 

ÁREA:
275 M2

 

LUGAR:
BOGOTÁ, COLOMBIA

 

DISEÑO:
BELLORINI
ARCHITECTURE STUDIO

 

CONSTRUCCIÓN:
LONDONO+RESTREPO

 

STATUS:
ENTREGADO NOVIEMBRE 2018

 

 

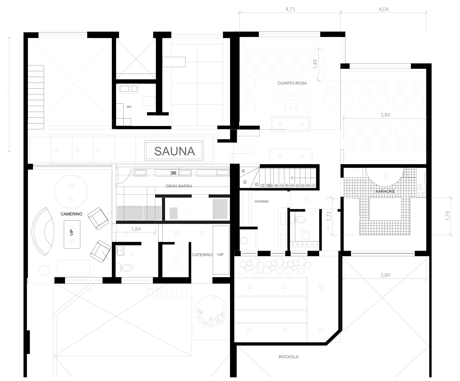
EL PROYECTO DE SAUNA BAR, SE CREÓ A PARTIR DE TENER UNA PROPUESTA MÁS INCLUSIVA EN EL ÁREA DE ARMANDO RECORDS, SIENDO PARTE DE LOS LOCALES DE ELLOS, CREAMOS UN BAR TOTALMENTE INDEPENDIENTE DE ARMANDO, PERO DE CIERTA MANERA CONECTADO. LA IDEA ERA PRESENTAR UN BAR ESTILO TIPO BERLÍN EN DONDE PRIMA LA CULTURA PUNK, TRASH, Y LOS ACABADOS GENERALMENTE SON MUY CRUDOS, SIN TERMINAR, INDUSTRIALES, INCLUSIVE QUISIMOS IR MÁS ALLÁ Y CONVERTIMOS EL ESTILO DEL ESPACIO EN UN GRAN ESPACIO ENCHAPADO TIPO BAÑO , COMBINANDOLO CON MADERAS Y DIFERENTES TIPOS DE ILUMINACIÓN PARA CREAR ATMÓSFERAS MÁS PRIVADAS.